Kaufen Villa в Spanien. Gegend Polideportivo, 3 Schlafzimmer, 134 м2
€ 586000
Objekt № RSP-N6124 от 18.07.2025
3
2
134 м2
240 м2
2025
8000 м.
Villa in Spanien kaufen. Viertel Polideportivo, 3 Schlafzimmer, 134 m², Benijófar, Costa Blanca.
Diese Villa liegt im Polideportivo-Viertel von Benijófar an der Costa Blanca, wo das Alltagsleben um lokale Sporteinrichtungen, Wohnstraßen und eine entspannte Ganzjahresgemeinschaft kreist. Immobilien in Spanien dieser Art sind ideal für alle, die echten Komfort und Stil suchen.
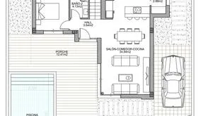
Es handelt sich um eine Neubauvilla (2025) mit 134 m² Innenraum, konzipiert für modernes Wohnen mit klaren Linien, praktischer Raumaufteilung und starkem Fokus auf den Außenbereich. Das Haus liegt auf einem 240 m² großen Grundstück und ist Teil einer bewachten Wohnanlage — ein Merkmal, das viele Käufer bei einer Immobilie in Spanien suchen.
Innen bietet die Villa 3 Schlafzimmer und 2 Badezimmer — eine sinnvolle Konfiguration für die Familiennutzung, Gäste oder ein Homeoffice. Die Gesamtproportionen sind gut ausgewogen: genug Raum zum Wohlfühlen, aber überschaubar in Pflege und Unterhalt.
Das Leben im Freien ist ein zentrales Merkmal. Eine private Terrasse bietet Platz zum Essen, Lesen oder für den Abenddrink, während der Garten Raum für Bepflanzung, Spiel oder einfach einen grünen Ausblick bietet. Der Pool ist ein klarer praktischer Vorteil im Costa-Blanca-Klima. Parkplatz/Garage ist inklusive.
Benijófar ist ein etabliertes Städtchen, kein rein touristischer Komplex. Das Polideportivo-Viertel ist bekannt für lokale Einrichtungen und Gemeinschaftsleben, das über den Hochsommer hinausgeht. Das Meer liegt ca. 8.000 m entfernt — passend für alle, die Strandtage planen, aber lieber abseits des lebhaftesten Küstenstreifens wohnen.
Eckdaten:
• Lage: Benijófar, Polideportivo, Costa Blanca
• Typ: Villa (Neubau, 2025)
• Fläche: 134 m²
• Grundstück: 240 m²
• Schlafzimmer / Bäder: 3 / 2
• Terrasse, Garten, privater Pool
• Parkplatz/Garage
• Bewachte Anlage
• Energieklasse: B
• Entfernung zum Meer: 8.000 m
Die bereitgestellten Informationen dienen nur zu Informationszwecken. Der angegebene Preis beinhaltet keine Steuern oder kaufbezogenen Kosten. Wir empfehlen, bei unseren Agenten nachzufragen, was im Preis enthalten ist.
Diese Villa liegt im Polideportivo-Viertel von Benijófar an der Costa Blanca, wo das Alltagsleben um lokale Sporteinrichtungen, Wohnstraßen und eine entspannte Ganzjahresgemeinschaft kreist. Immobilien in Spanien dieser Art sind ideal für alle, die echten Komfort und Stil suchen.
Es handelt sich um eine Neubauvilla (2025) mit 134 m² Innenraum, konzipiert für modernes Wohnen mit klaren Linien, praktischer Raumaufteilung und starkem Fokus auf den Außenbereich. Das Haus liegt auf einem 240 m² großen Grundstück und ist Teil einer bewachten Wohnanlage — ein Merkmal, das viele Käufer bei einer Immobilie in Spanien suchen.
Innen bietet die Villa 3 Schlafzimmer und 2 Badezimmer — eine sinnvolle Konfiguration für die Familiennutzung, Gäste oder ein Homeoffice. Die Gesamtproportionen sind gut ausgewogen: genug Raum zum Wohlfühlen, aber überschaubar in Pflege und Unterhalt.
Das Leben im Freien ist ein zentrales Merkmal. Eine private Terrasse bietet Platz zum Essen, Lesen oder für den Abenddrink, während der Garten Raum für Bepflanzung, Spiel oder einfach einen grünen Ausblick bietet. Der Pool ist ein klarer praktischer Vorteil im Costa-Blanca-Klima. Parkplatz/Garage ist inklusive.
Benijófar ist ein etabliertes Städtchen, kein rein touristischer Komplex. Das Polideportivo-Viertel ist bekannt für lokale Einrichtungen und Gemeinschaftsleben, das über den Hochsommer hinausgeht. Das Meer liegt ca. 8.000 m entfernt — passend für alle, die Strandtage planen, aber lieber abseits des lebhaftesten Küstenstreifens wohnen.
Eckdaten:
• Lage: Benijófar, Polideportivo, Costa Blanca
• Typ: Villa (Neubau, 2025)
• Fläche: 134 m²
• Grundstück: 240 m²
• Schlafzimmer / Bäder: 3 / 2
• Terrasse, Garten, privater Pool
• Parkplatz/Garage
• Bewachte Anlage
• Energieklasse: B
• Entfernung zum Meer: 8.000 m
Die bereitgestellten Informationen dienen nur zu Informationszwecken. Der angegebene Preis beinhaltet keine Steuern oder kaufbezogenen Kosten. Wir empfehlen, bei unseren Agenten nachzufragen, was im Preis enthalten ist.
Optionen
Karte



